System TS-Sprint-cut
Back
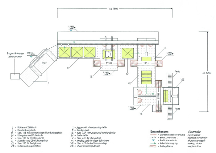
The components. 

Profi-Line jogger and counting table 
Feeding device type AM 3 
Senator S-Line 115H with turning device and automatic waste removal TrimmMaster 
Transfer- and cache station towards second guillotine 
Senator S-Line 115 H with special backgauge for strip cut 
Alignment station and transfer table 
Guillotine Senator S-Line 115 H for finishing cut 
Transfer station for cutouts 

Dimensions
Label cut above the rest.

Developed for fully-automatic processing of banknotes, securities, labels and similar - from the sheet to finished single cutout - this high-quality system reduces the necessity of an operator to a minimum.

Customer requirement.
During the whole working process no manual intervention is needed. Therefore the plant is much faster than the conventional processing. So nearly 540.000 cutouts can be processed per hour. This makes the TS-Sprint-cut a very interesting system.


Technical Data  
Minimum paper format,      mm 610 x 640  
Maximum paper format,     mm 700 x 820  
Maximum ream height,mm 25 
Space requirements,  mm 8.500 x 8.000  
Productivity    9.000 sheets / per hour 
     
252,000 to 540,000 banknotes (depending on number of cutouts) 


Subject to technical modifications. Errors excepted. 
*Click on the images above to view the full size image.
HOMEPRODUCTSHISTORYSALESUSEDSERVICE / PARTS
CONTACT USLITERATUREVIDEOSDEALER INQUIRIES