185 TrimmMaster System with rear feeding
Back
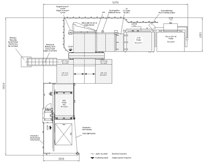
The layout displayed below shows just one of many versions possible. We would be glad to submit to you a customized Layout.
Brief description

Pile hoist 
Jogger 
Transfer table with automatic rear table gripper-feeding 
Senator E-Line 185 with TrimmMaster for automatic waste removal 
2 movale transfer tables LTR 
Restacker 

Layout
HOMEPRODUCTSHISTORYSALESUSEDSERVICE / PARTS
CONTACT USLITERATUREVIDEOSDEALER INQUIRIES

© Senator Technology. All rights reserved.